Landscape design for back garden in East Vancouver
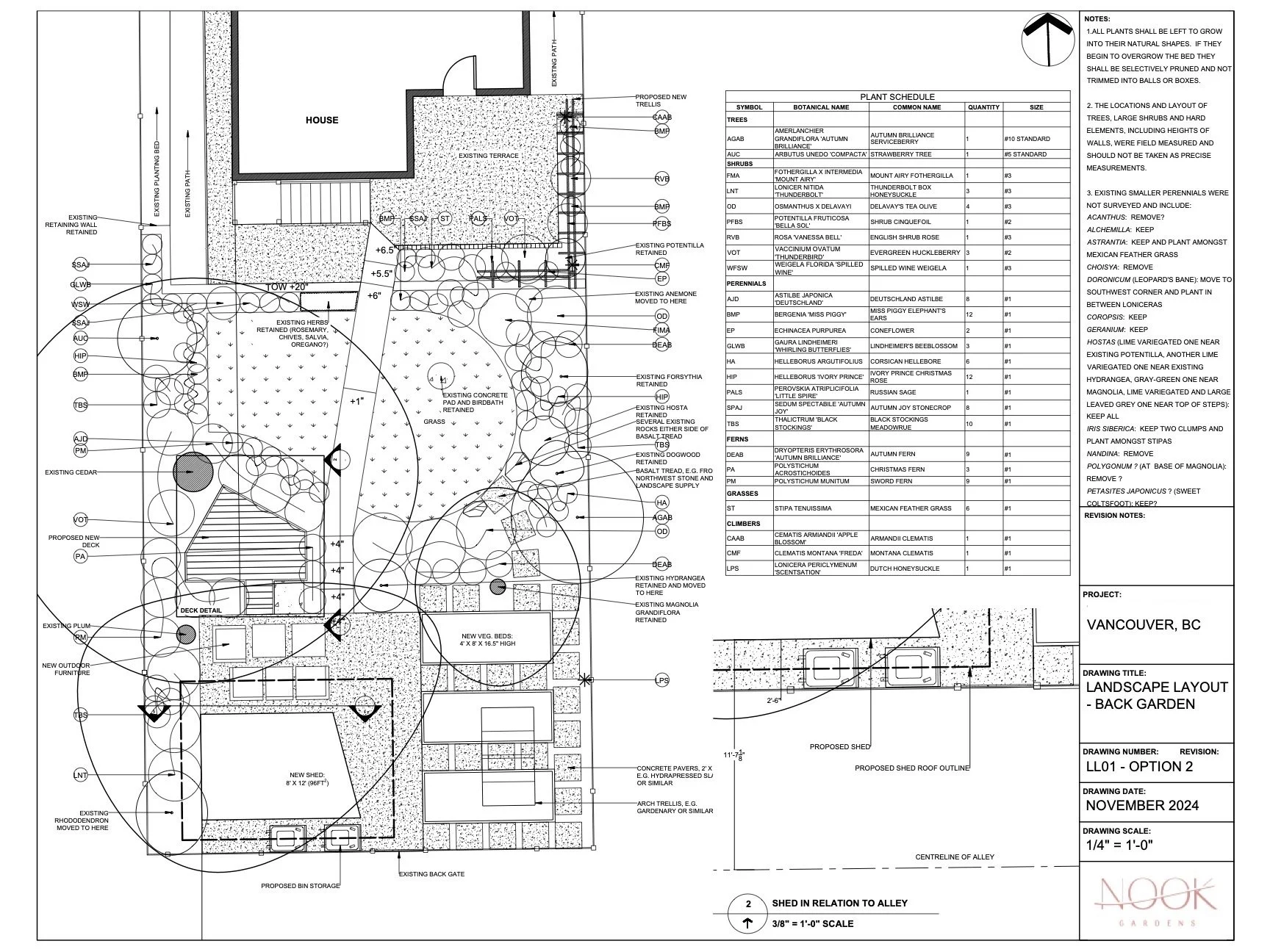
The landscape plan shows a detailed design for a backyard in Vancouver, BC, including defined garden areas, new vegetation and functional spaces. Features include a vegetable bed, a proposed deck and shed, and outdoor furniture. Planting includes a variety of shrubs, perennials, and climbers, enhancing the look and functionality of the existing spaces. Existing elements are integrated thoughtfully into the new design.
-
3D sketch - proposed new pergola

-
3D sketch - Initial location of proposed new shed

-
3D sketch - proposed new deck
