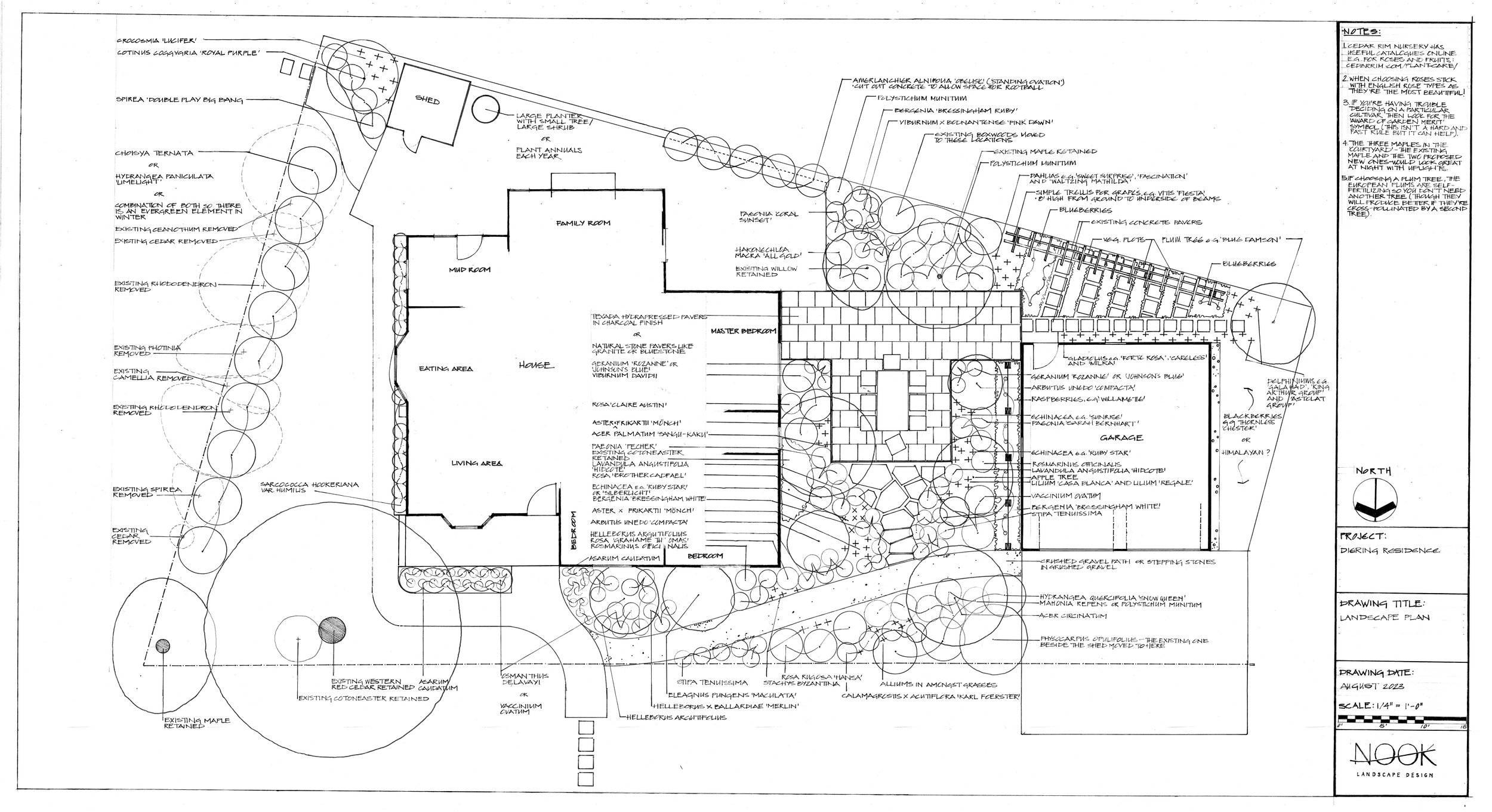
Sketch design for a property in Delta.  The clients had recently bought the property and wanted to undertake most of the work themselves, but did not know where to begin to make it into the beautiful and enjoyable family home they desired.  The existing landscape is spacious but had been neglected, and constituted an assortment of several large, old shrubs on the eastern edge and in front of the house, but with no unifying overall plan.  The proposed design centres on a paved area between the house and garage to provide a place for dining and entertaining friends and family.  The space is flat and receives plenty of sun, so sun-tolerant small trees  (Arbutus unedo, Acer palmatum ‘‘Sangu Kaku and an apple tree) underplanted with medium to low-height shrubs surround the paving.  The property is near the sea so more tough sun-loving and sun-tolerant shrubs (grasses, Rosa rugosa, Mahonia repens and oak leaf hydrangea) were used in massed groups at the front to help enclose and soften the boundary along the main road (and along which the clients are also planning to put up a low cedar fence) and to reduce the extent of lawn.  The clients wanted space to grow fruit and vegetables and to have flowers for cutting so a vegetable garden is located in the sunny, sheltered area behind the garage and a variety of classic flowering perennials such as gladiolus, delphiniums, peonies and late flowering perennials were incorporated throughout the vegetable garden and the shrubs around the central paved area.  Alternative planting, hard landscape suggestions and useful references were included on the plan to help the clients adapt the design as they implement it gradually.

Previous
Previous

Fisher Residence

Next
Next

Other Projects